• Liczba pokoi:3
  • Powierzchnia:72 m2
  • Cena: 870 000 zł

Oferujemy komfortowe, dwupoziomowe mieszkanie o powierzchni 69,58 m ( 1piętro + poddasze ) usytuowane na kameralnym zamkniętym osiedlu, w cichej i zielonej okolicy, z jednoczesnym dostępem do komunikacji i infrastruktury miejskiej. Mieszkania są 3 pokojowe, położone w podwarszawskim Wawrze w doskonałej lokalizacji tylko 16 min do centrum Warszawy i 450 m do lasu.
Cała inwestycja składa się z trzykondygnacyjnego budynku oferującego 4 (dwupoziomowe) mieszkania o optymalnie zaprojektowanych rozkładach pomieszczeń, odpowiadających na potrzeby życia codziennego oraz stwarzających warunki do adaptacji dla inwestorów. Została zaprojektowana i jest realizowana zgodnie z najwyższymi standardami, przy użyciu nowoczesnych technologii, solidnych materiałów budowlanych. Stonowana kolorystyka oraz elegancka bryła nadają jej ponadczasowego charakteru i pozwalają idealnie wpasować się w otoczenie. Brak czynszu to dodatkowy atut.

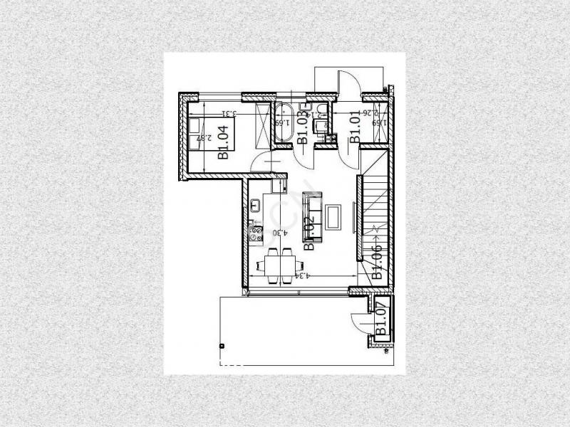
Na poszczególnych kondygnacjach znajduje się:
Na parterze :

Hall o powierzchni 2,38 m
Schody 1,38 m

RAZEM 3,76 m

Na piętrze:

pokój dzienny z aneksem kuchennym 19,88 m
WC 1,31 m
Schody 1,36 m

RAZEM 28,02 m

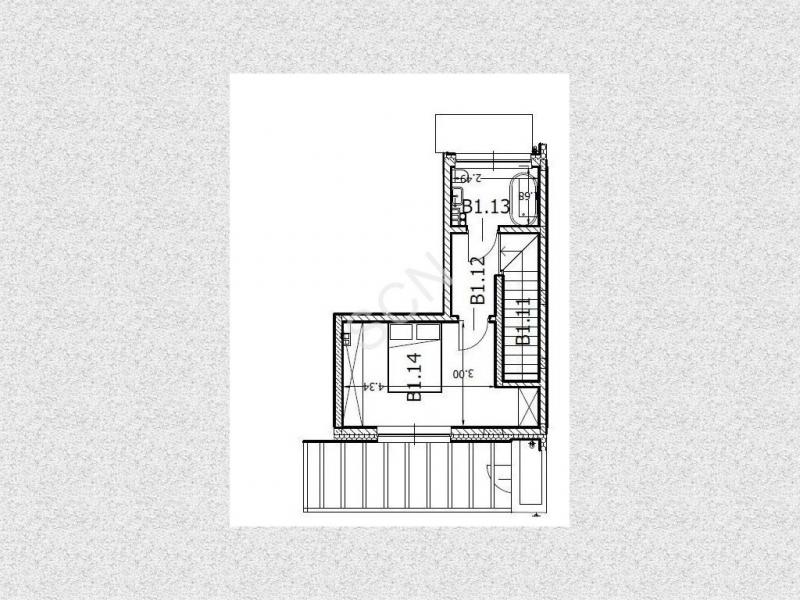
Na poddaszu:

Schody 5,21 m
Korytarz 4,71 m
Sypialnia 10,88 m
Sypialnia 9,68 m
Łazienka 6,48 m
Stryszek 0,84 m

RAZEM 37,80 m

Do mieszkania przynależą dwa miejsca parkingowe oraz ogródek o powierzchni 80m2

Świetna lokalizacja: 211 m do przystanku autobusowego, 318 m do szkoły podstawowej, 382 m do przedszkola, 450 m do lasu, 7,5 km do Południowej Obwodnicy Warszawy,16 minut samochodem do centrum
Zakup od dewelopera bez podatku PCC.
Oferujemy również bezpłatną pomoc w uzyskaniu kredytu.
Zapraszamy do kontaktu!

Nad jakością obsługi oferty czuwa pani Magdalena Łabuć - licencjonowany pośrednik w obrocie nieruchomościami, nr licencji 19420

Numer ofertyM-90615-12
Typ ofertyMieszkanie na sprzedaż
Cena870 000 zł (12 083 zł/m2)
Rynekpierwotny
Powierzchnia72 m2
Piętro1/2
Liczba pokoi3
Rok budowy2025
Materiał budowycegła
Media-
Inf. dodatkoweogródek, dwupoziomowe
nazwa powierzchnia opis
kuchnia - -
przedpokój 6.5m2 -
toaleta 3.91m2 -
łazienka 3.38m2 -
pokój 19.88m2 -
pokój 10.88m2 -
pokój 9.68m2 -
Województwomazowieckie
PowiatWarszawa
MiastoWarszawa
DzielnicaWawer